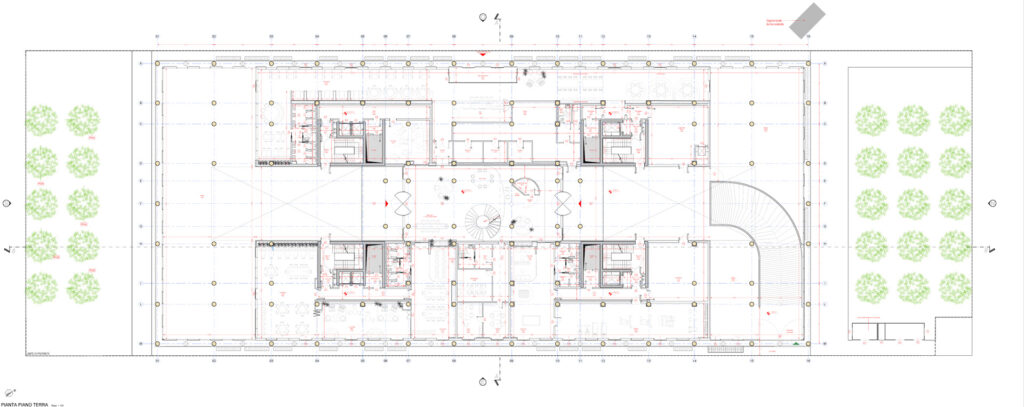
MIND 14.1 – Milano Innovation District

Committente:

REAM SGR S.p.a.

Stato:

In corso di realizzazione

Genere:

Studentato

Ubicazione:

Milano

Dimensione:

51.000 MC